Top Rock Homes Ltd.
FOREST HEIGHTS
luxury high-quality new home builder in Edmonton
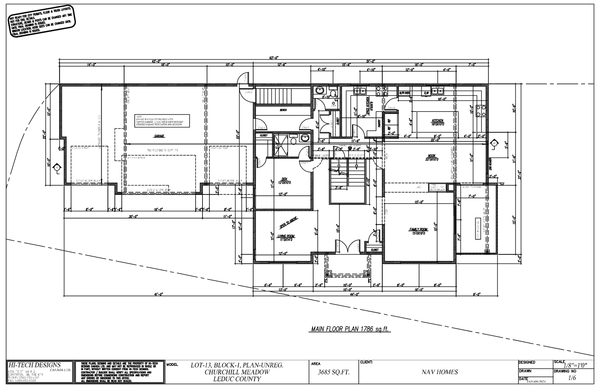
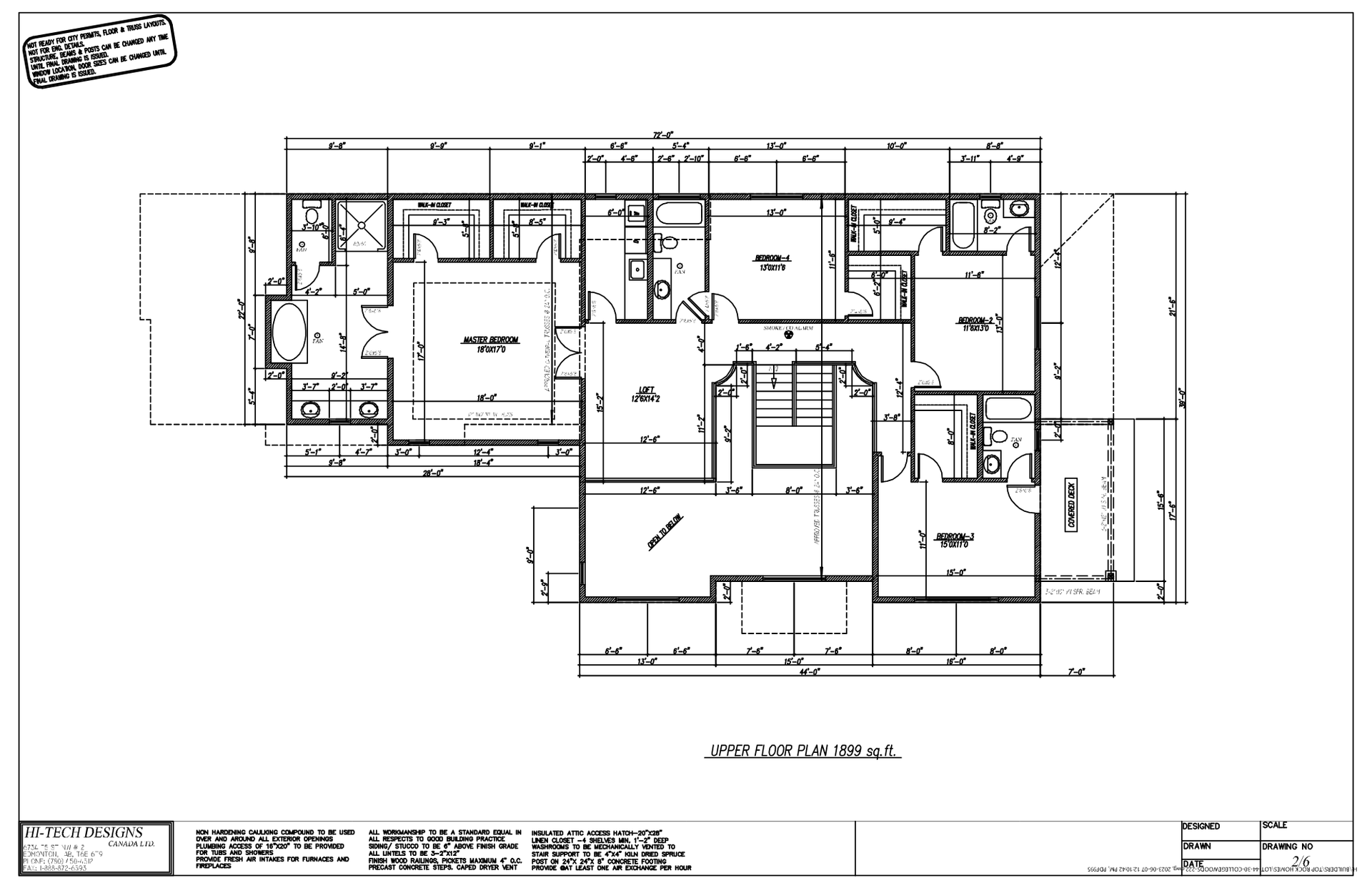
4 Bedrooms
3.5 Bathrooms
2940 Sq Ft
Double Car Garage (724 Sqft)
FOREST HEIGHTS Floor Plan
Top Rock Homes
This modern two-storey home offers around 2940 sq. ft. of thoughtfully designed living space, featuring 4 spacious bedrooms and 3.5 bathrooms. The layout includes open-concept living, a family room, den, and a functional kitchen with a separate spice kitchen. The upper floor provides a luxurious master suite with walk-in closet and ensuite, along with additional bedrooms and a loft area. A large double-car garage and covered outdoor spaces add both convenience and comfort, making it ideal for modern family living.












